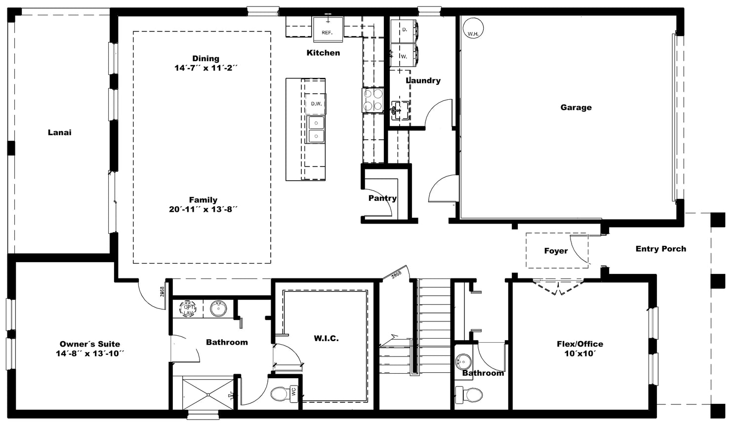
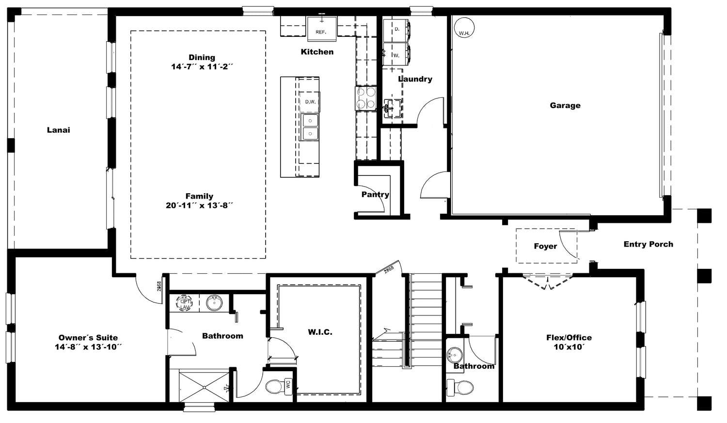
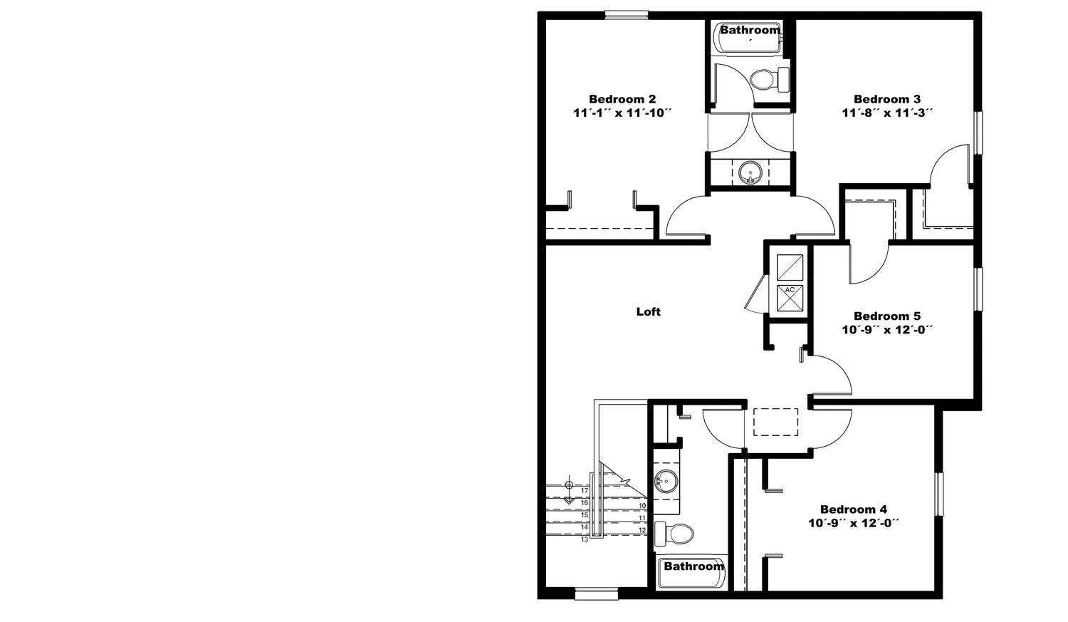
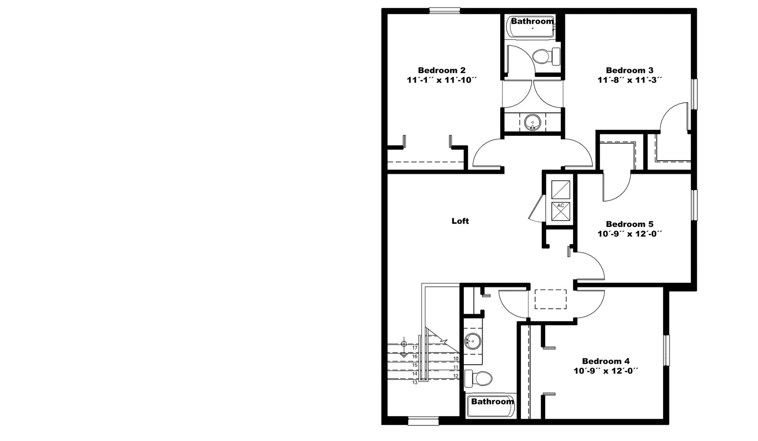
Floor plans features, options, elevations, designs, materials, dimensions are subject to change without notice. Base floor plan reflects elevation Juli A,B, ans C rendering and that other elevations may affect base floor plan configuration. Square Footage and dimensions are estimated and may vary in actual construction. Floor plans and elevations are artist’s conception and are not intended to show specific detailing. Window elevations vary based on front elevation.
Brokered by Olde Town Brokers a Florida Real Estate Company. REQUEST INFO
